正弘瓴230㎡现代新中式
作者: 易筑艺墅设计一中心
浏览次数: 3274次
发布时间: 2026/3/24 下午2:26:43
我要做同款
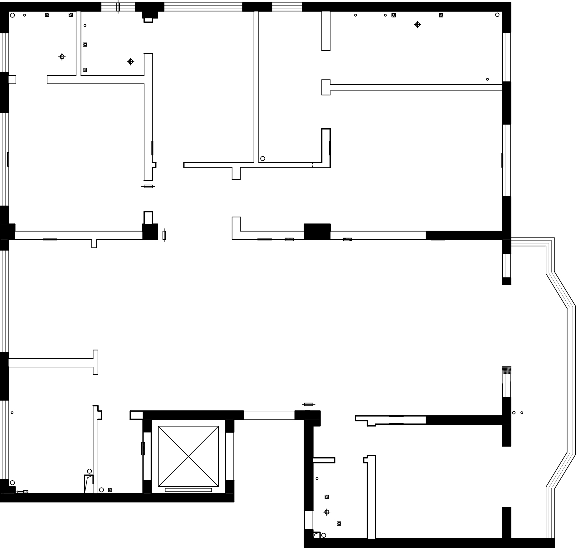
户型分析
客厅
新中式风格自然摆脱了传统中式的沉闷感。


客厅
融合了现代化元素的时尚简洁和传统中式元素的神韵,大多采用简洁硬朗、横平竖直的线条。简洁的线条,会让空间更加的纯粹,更富现代感。








卧室
这种简洁而流畅的线条的使用,让空间既高级又雅致。装修的对称布局凸显中式风格,对称之美源自于自然,它能带给人一种静谧的审视感,蕴含着平衡、稳定之美。



相关实景查看更多
正弘瓴 230㎡ 现代简约
正弘瓴 230㎡ 现代简约
2026/3/24 上午2:30:51
选择简约就是选择了一种生活态度,在快节奏的都市生活中,简约的家可以彻底的放松身心、享受生活。本案在对空间进行重新梳理的同时,兼顾功能与情趣,整体格调时尚,优雅,简洁。 室内的色彩压低饱和度,岩板,墙板,等多种元素相得益彰,营造出一种特殊的氛围。电视墙兼具收纳功能,一抹灰橙点缀其中,与壁炉交相呼应,不过分的渲染,却是恰到好处,身处其中,便可以感受到那份悠然自得的精致。
正弘瓴 230㎡ 现代新中式风格
正弘瓴 230㎡ 现代新中式风格
2026/3/18 上午12:48:48
新中式风格自然摆脱了传统中式的沉闷感。融合了现代化元素的时尚简洁和传统中式元素的神韵,大多采用简洁硬朗、横平竖直的线条。简洁的线条,会让空间更加的纯粹,更富现代感。这种简洁而流畅的线条的使用,让空间既高级又雅致。装修的对称布局凸显中式风格,对称之美源自于自然,它能带给人一种静谧的审视感,蕴含着平衡、稳定之美。
冠景君悦湖 160㎡ 现代新中式
冠景君悦湖 160㎡ 现代新中式
2026/3/25 上午4:33:54
本案设计以现代新中式风格为主线,注重通透采光与空间视野。客餐厅采用开放式柜体,巧妙区分空间,同时保持通透感。餐厅岛台增加互动,优化储物与墙面设计。厨房以简约中性风为主,打造宁静雅致氛围。主卧则以浅灰与木色营造舒适感,飘窗与小物件的点缀增添生活气息。卫生间采用长方形浴室柜与灰色瓷砖,简约大气,镜柜反射光影,营造晶莹剔透感。整体设计注重细节与实用性的结合,打造出韵味十足、舒适自然的现代家居空间。
龙湖壹号 250㎡ 新中式风格
龙湖壹号 250㎡ 新中式风格
2026/3/22 下午11:06:56
最初的设计概念定位为东方禅意。设计师希望用极简的线条与淡雅的纯色相搭配,创造质朴却不失品位,含蓄但不单调的生活氛围。但是整个硬装的风格运用的是目前市场比较常见的手法,金属和反光材质的运用,让空间有着华丽的诉求。新禅意解读空间智慧是本案让“禅”这种出世的意境在空间中得以体现的解决方案。
正弘瓴 230㎡ 现代新中式风格
正弘瓴 230㎡ 现代新中式风格
2026/3/18 上午12:48:48
新中式风格自然摆脱了传统中式的沉闷感。融合了现代化元素的时尚简洁和传统中式元素的神韵,大多采用简洁硬朗、横平竖直的线条。简洁的线条,会让空间更加的纯粹,更富现代感。这种简洁而流畅的线条的使用,让空间既高级又雅致。装修的对称布局凸显中式风格,对称之美源自于自然,它能带给人一种静谧的审视感,蕴含着平衡、稳定之美。
金领九如意 269㎡ 现代新中式
金领九如意 269㎡ 现代新中式
2026/3/8 下午8:41:38
中国传统美学形式强调的是简素美,不采用过多的装饰技巧,体现出淡雅的文化气质,加上现代感的设计更能体现出简单素净的感觉,同时多样的家具也体现出统一的和谐性。
