龙湖上第复式230㎡现代简约风
作者: 原创设计一中心
浏览次数: 2289次
发布时间: 2025/11/15 下午3:30:49
我要做同款
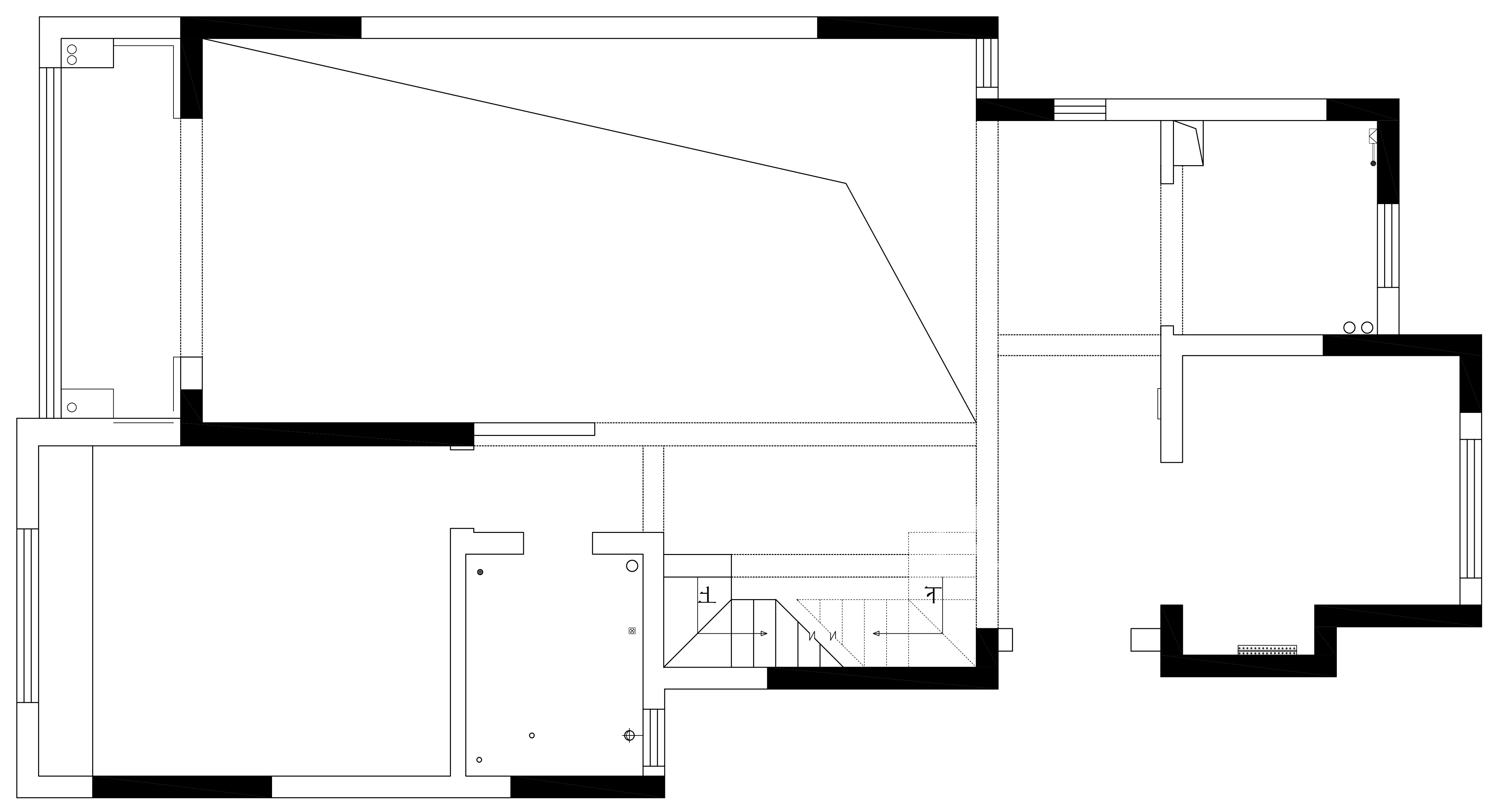
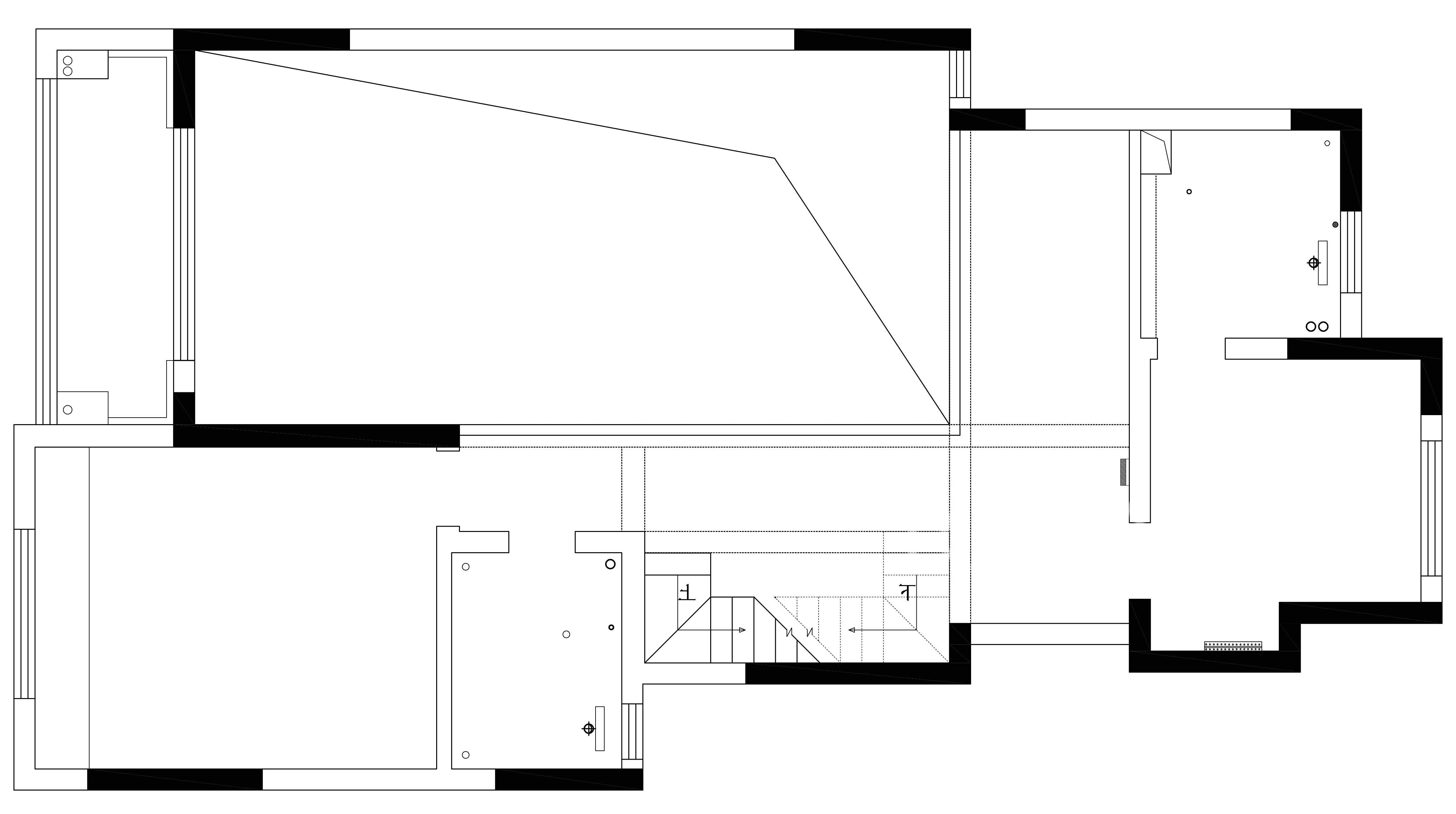
户型分析
客厅
本项目旨在打造一个现代简约、注重材质表达与空间体验的顶层复式居所。入户的第一空间,门厅通过木质结构的穿插,自然划分出 “收纳区” 与 “视觉焦点区”,既满足了入户收纳的功能需求,又通过虚实结合的布局,实现了从室外到室内的柔和过渡。


客厅
客厅属于现代简约风格的复式空间布局,整体设计呈现出通透感强、功能分区明确、层次丰富的; 复式挑空设计:客厅采用双层挑空结构,上层设有玻璃护栏的回廊区域,下层是核心起居区,通过层高差异营造出开阔且有层次的视觉效果。 以 “客 - 餐 - 休闲” 为核心,通过材质+灯光和功能家具自然划分空间,无明显物理隔断,保持空间的通透感。




餐厅
长形餐桌配多把餐椅,艺术感吊灯与开放式置物架结合,既满足收纳又具装饰性,灯光设计突出展示效果。



卧室
空间布局:以床为核心,两侧设床头柜,窗边有休闲区域,角落规划工作学习区,功能分区清晰且动线流畅。 色彩搭配:采用米白、浅灰、深棕等低饱和度色系,营造宁静舒适的休憩氛围。




相关案例查看更多
碧桂园云湖天境210㎡现代简约风
碧桂园云湖天境210㎡现代简约风
2025/12/17 下午6:00:00
当时光的喧嚣渐渐沉淀,人们对家的向往愈发趋向内心的宁静与纯粹。本案以简白为纸,润木为墨,勾勒出一处能安放疲惫、滋养心灵的静谧港湾。
中海云著湖居500㎡现代极简风
中海云著湖居500㎡现代极简风
2025/12/20 下午10:01:45
设计旨在充分利用底层复式的空间特性,将地上层作为家庭主要生活区,将地下层打造为一个集高端会客、休闲娱乐、静谧休憩于一体的“家庭私享空间”。
保利文化广场121㎡现代简约风
保利文化广场121㎡现代简约风
2025/12/20 下午10:10:38
一场关于生活美学的邂逅,在这个快节奏的时代,我们渴望一方净土,慢下来,让心灵得以栖息。用极简的设计语言,勾勒出生活的本真与纯粹,让家成为最温柔的港湾。 ▪️
永威上和琚220㎡现代简约
永威上和琚220㎡现代简约
2025/12/11 上午10:08:56
本项目为一座220平方米的现代都市大平层宅邸。设计旨在打破传统布局,创造一个开放式、社交型、充满流动感的居住空间。核心理念为“居中为核,南北贯通”,通过将客厅置于中心,并采用背靠背沙发形成回游动线,完美契合南北通透的户型优势,让空间成为连接家庭情感与社交生活的核心场域。设计强调材质的天然质感与碰撞,营造一个既大气磅礴又温暖舒适的生活居所。
兰溪府143㎡现代简约风
兰溪府143㎡现代简约风
2025/12/20 上午10:13:00
本案风格设计定位为简约风格,它不追求繁复的装饰,以简洁的色彩搭配和流畅的线条勾勒空间,就像用最纯粹的笔触描绘生活。以柔和米色与深邃灰色为主调,黑色巧妙穿插,营造出宁静温馨且稳重的空间氛围,奠定了简约格调的基调。秉持“少即是多”理念,摒弃繁杂,以流畅线条塑造开阔通透之感。
曼哈顿公寓67㎡现代简约风
曼哈顿公寓67㎡现代简约风
2025/12/18 下午9:14:46
本案设计注重空间层次感与色彩对比,通过简约硬装与精致软装打造高级感。色调上以黑白灰为主,点缀色彩艳丽的艺术画作,和黑色木饰面形成强烈对比,增强空间层次。同时通过米灰柔光地砖、白色柜体等元素平衡视觉,避免压抑感。
兰溪府160㎡现代简约风
兰溪府160㎡现代简约风
2025/12/20 下午12:11:00
有品质的生活空间并非简单的奢华堆砌,而是富有层次的精雕细琢,它注重空间的合理利用,通过巧妙的设计手法,让每一个角落都散发着独特的魅力。
兰溪府160㎡现代简约风
兰溪府160㎡现代简约风
2025/12/18 下午11:20:45
本案风格设计定位为简约风格,它不追求繁复的装饰,以简洁的色彩搭配和流畅的线条勾勒空间,就像用最纯粹的笔触描绘生活。以柔和米色与深邃灰色为主调,黑色巧妙穿插,营造出宁静温馨且稳重的空间氛围,奠定了简约格调的基调。秉持“少即是多”理念,摒弃繁杂,以流畅线条塑造开阔通透之感。空间布局兼顾功能与实用,拓展空间并融合内外景致。

