永威上和院232㎡现代简约风
作者: 原创设计一中心
浏览次数: 2033次
发布时间: 2025/11/24 上午11:36:18
我要做同款
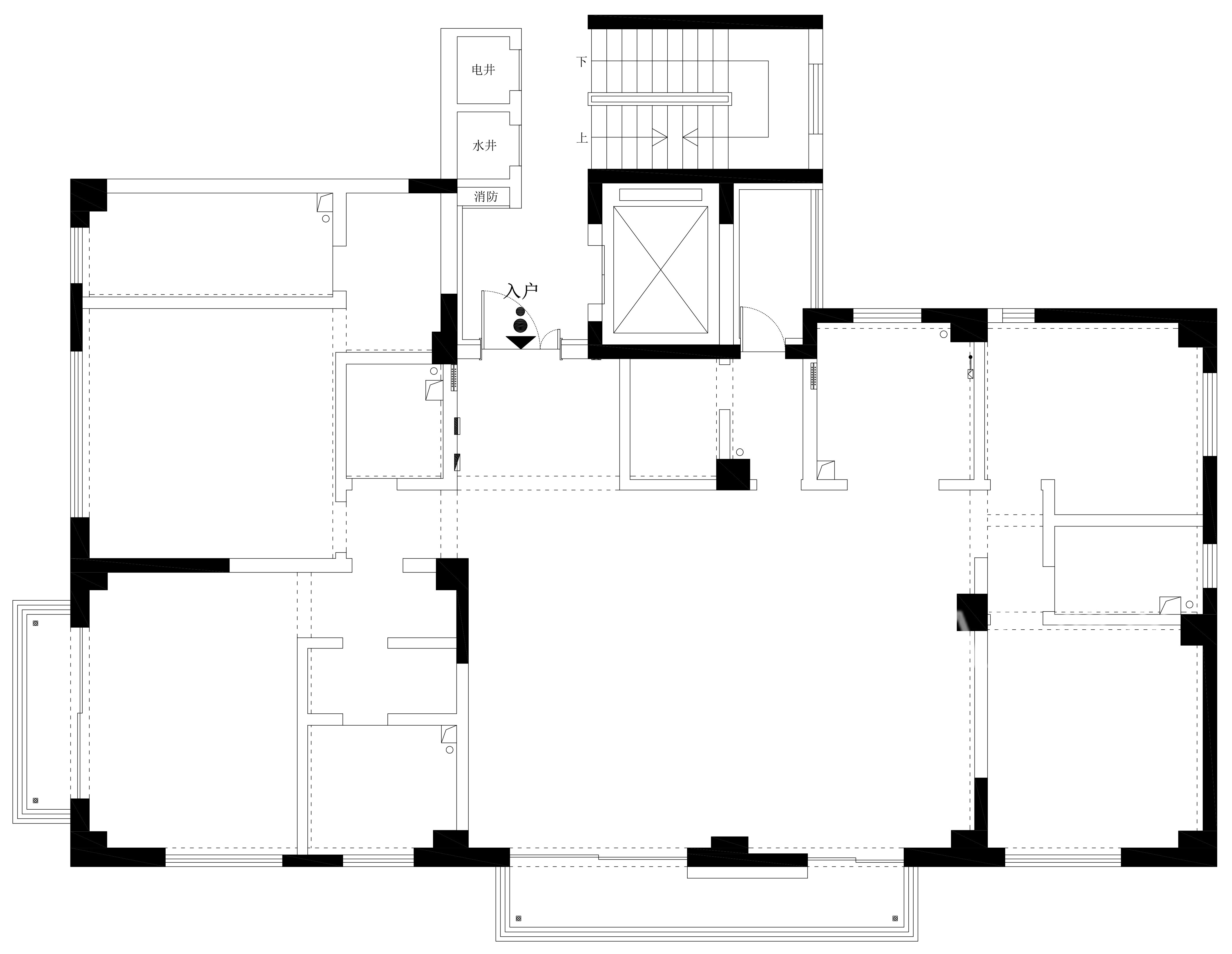
户型分析
门厅
本案整体风格以现代简约、舒适自然为主要特点,整体设计注重利用自然光线,尽可能地让阳光照射到室内,入户后两拍收纳柜,满足超强收纳,南北连贯的客餐厅,大气舒适,双推拉门采光充足,空间整体通透。

客厅
入户后两拍收纳柜,满足超强收纳,南北连贯的客餐厅,大气舒适,双推拉门采光充足,空间整体通透。




餐厅
现代、简约的家具增加了整个空间的氛围感,置身其中,体会居家的休闲惬意。

主卧
精心挑选的装饰品,如花瓶、挂画和装饰枕头等,这些简单的饰品具有各自的特点,用来增加整个空间的层次感和温馨感,营造出一种独特优雅的高级感。


卧室
这是一间现代简约风格的卧室,整体以柔和的浅色调为主,营造出温馨舒适的氛围。白色的复古风四柱床,搭配米色床品和造型别致的抱枕,尽显雅致。床前的圆形地毯上摆放着两只白色毛绒玩具熊和一些木质玩具,增添了童趣感。


相关案例查看更多
永威上和院 260㎡ 现代风格
永威上和院 260㎡ 现代风格
2025/11/8 上午2:17:20
“半烟火谋生活,一半诗意许清欢”。在车水马龙的城市中,保持一份清淡素雅,把生活过的活色生香,把岁月变得温柔绵长。为灵魂和肉身创造出契合的庇护所。“你眼中的诗意的人间烟火,是我想要抵达的彼岸。
永威上和院 267㎡ 现代轻奢风格
永威上和院 267㎡ 现代轻奢风格
2025/11/9 上午2:20:46
本案中,现代轻奢为主基调,从中体现的不仅仅是设计师的高审美创作,更是业主对生活品质的追求。根据业主的需求,设计师将空间重新布局优化。
碧桂园云湖天境210㎡现代简约风
碧桂园云湖天境210㎡现代简约风
2025/11/21 下午2:40:25
当时光的喧嚣渐渐沉淀,人们对家的向往愈发趋向内心的宁静与纯粹。本案以简白为纸,润木为墨,勾勒出一处能安放疲惫、滋养心灵的静谧港湾。
中海云著湖居500㎡现代极简风
中海云著湖居500㎡现代极简风
2025/11/22 下午10:26:26
设计旨在充分利用底层复式的空间特性,将地上层作为家庭主要生活区,将地下层打造为一个集高端会客、休闲娱乐、静谧休憩于一体的“家庭私享空间”。
保利文化广场121㎡现代简约风
保利文化广场121㎡现代简约风
2025/11/12 下午1:50:14
一场关于生活美学的邂逅,在这个快节奏的时代,我们渴望一方净土,慢下来,让心灵得以栖息。用极简的设计语言,勾勒出生活的本真与纯粹,让家成为最温柔的港湾。 ▪️
永威上和琚220㎡现代简约
永威上和琚220㎡现代简约
2025/11/24 上午11:27:38
本项目为一座220平方米的现代都市大平层宅邸。设计旨在打破传统布局,创造一个开放式、社交型、充满流动感的居住空间。核心理念为“居中为核,南北贯通”,通过将客厅置于中心,并采用背靠背沙发形成回游动线,完美契合南北通透的户型优势,让空间成为连接家庭情感与社交生活的核心场域。设计强调材质的天然质感与碰撞,营造一个既大气磅礴又温暖舒适的生活居所。
龙湖上第复式230㎡现代简约风
龙湖上第复式230㎡现代简约风
2025/11/23 上午4:12:34
本项目旨在打造一个现代简约、注重材质表达与空间体验的顶层复式居所。设计摒弃繁复的装饰,以建筑的体块感、材质的碰撞与融合为核心理念。通过挑空结构、悬浮楼梯、大面积的统一色漆与对比鲜明的金属收口,塑造出一个开阔、静谧、极具现代感且充满温度的生活空间。
兰溪府143㎡现代简约风
兰溪府143㎡现代简约风
2025/11/19 下午2:07:10
本案风格设计定位为简约风格,它不追求繁复的装饰,以简洁的色彩搭配和流畅的线条勾勒空间,就像用最纯粹的笔触描绘生活。以柔和米色与深邃灰色为主调,黑色巧妙穿插,营造出宁静温馨且稳重的空间氛围,奠定了简约格调的基调。秉持“少即是多”理念,摒弃繁杂,以流畅线条塑造开阔通透之感。
