兰溪府185㎡意式轻奢风
作者: 原创设计三中心
浏览次数: 2033次
发布时间: 2025/11/28 下午2:26:40
我要做同款
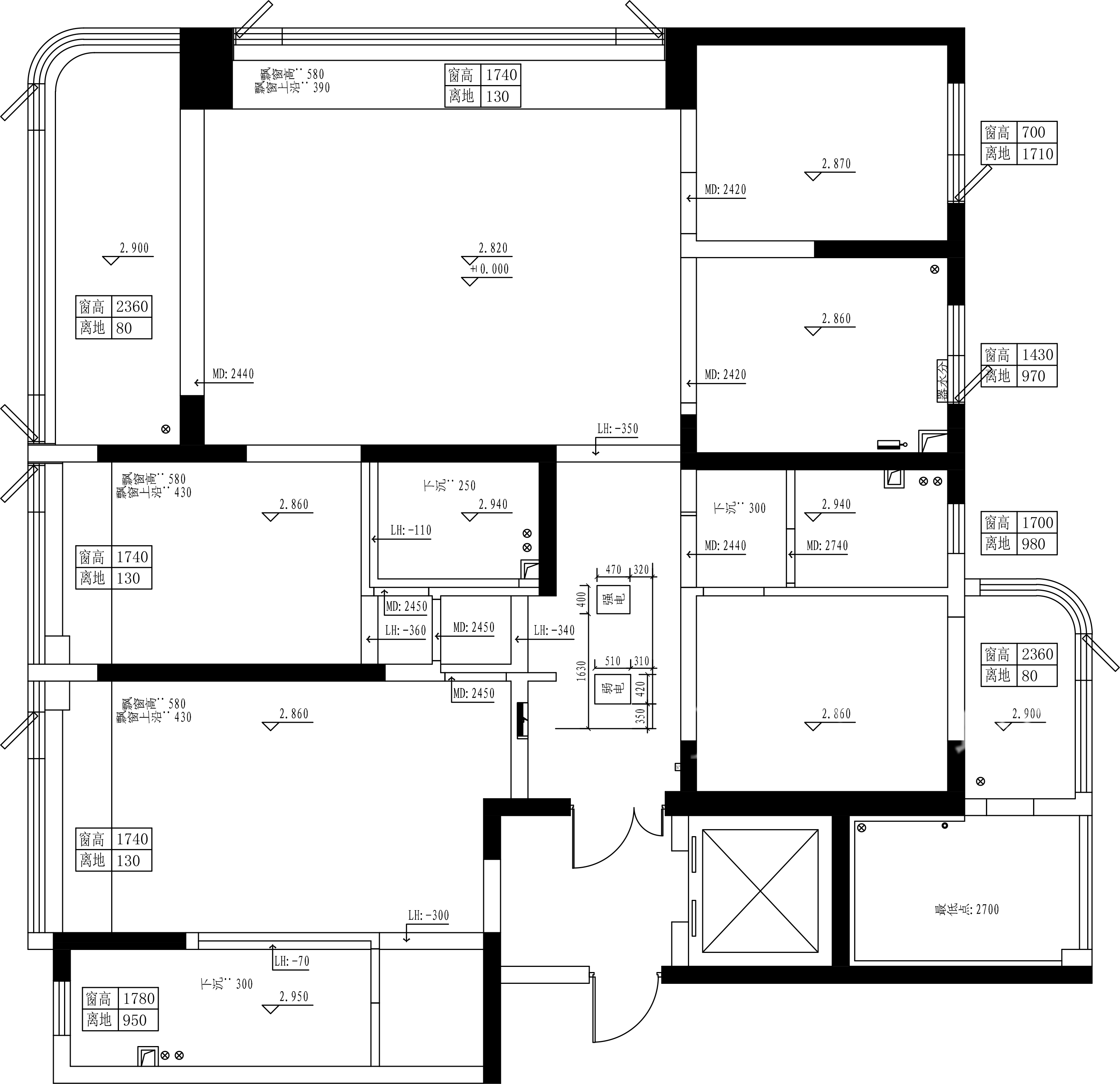
户型分析
客厅
意式轻奢风格,通过胡桃木和灰色墙板的搭配,层次分明: 守住中性色基底,用点缀色提亮。


餐厅
大胆让冷峻的石材、金属与温润的木材、皮革进行碰撞,线条利落,弧角圆润,细节精致 整体造型简约,但更注重收边细节。


卧室
光影魔术,营造氛围善用多种灯光组合,留白艺术,宁缺毋滥:给空间“呼吸”的余地。塑造空间的情绪和高级感。

相关案例查看更多
兰溪府143㎡现代简约风
兰溪府143㎡现代简约风
2025/11/26 上午9:45:31
本案风格设计定位为简约风格,它不追求繁复的装饰,以简洁的色彩搭配和流畅的线条勾勒空间,就像用最纯粹的笔触描绘生活。以柔和米色与深邃灰色为主调,黑色巧妙穿插,营造出宁静温馨且稳重的空间氛围,奠定了简约格调的基调。秉持“少即是多”理念,摒弃繁杂,以流畅线条塑造开阔通透之感。
兰溪府160㎡中古风
兰溪府160㎡中古风
2025/11/26 上午12:19:06
本案风格设计定位为现代中古,中古风设计理念强调对特定历史时期美学的回溯与提炼, 注重设计的实用性与筒洁性, 这在中古风家具设计上体现为线条流畅、造型简约, 减少不必要装饰。
兰溪府185㎡意式轻奢
兰溪府185㎡意式轻奢
2025/11/27 下午3:23:06
公共区域客餐厨一体化布局,光线与视线自由流通,营造互动空间。暖色调氛围感搭配金属点缀,凸显意式轻奢特质。用中性色彩,简约材质与线条,融合经典意式与现代居住需求,打造高品质住宅。
格润小镇198㎡意式轻奢
格润小镇198㎡意式轻奢
2025/11/27 上午9:17:47
展现意式轻奢精髓,自然肌理与金属的精致光泽交相辉映,构建出层次丰富且极具质感的空间体系。自然光肆意漫入,与室内灯光巧妙交织,消弭了空间的物理边界。
在秩序感与优雅气韵的精妙平衡中,全方位诠释出对高阶生活美学的深度探索与极致追求,让居住者于其中能真切感受到品质生活的独特魅力与精神内核。
中建元熙府143㎡意式轻奢风
中建元熙府143㎡意式轻奢风
2025/11/25 下午6:34:47
本设计案例通过精心打造各个空间,为主人提供了一个舒适、时尚、实用的居住环境。在空间布局上,充分考虑居住者的生活习惯和需求,追求空间的合理利用和动线的流畅性,使各个功能区域既相互独立又紧密联系,营造出开阔、通透的居住感受。
招商·时代天宸143㎡意式轻奢风格
招商·时代天宸143㎡意式轻奢风格
2025/11/21 上午3:32:28
本案采用餐厨一体开放式设计,视野开阔,采用无吊顶式无主灯设计,隐藏式灯光设计 增添氛围;结合轻奢主义打造意式简约空间,整体运用了深咖色系门板、格栅以及岩板、大理石等不同材质的碰撞,空间沉稳大气,质感十足。
永美大公馆180㎡意式极简风格
永美大公馆180㎡意式极简风格
2025/11/24 下午2:00:29
本案风格设计定位为意式极简,意式极简风格是一种追求简约、优雅和实用的设计理念,源自意大利的生活方式和美学观念。 它强调简洁、清晰的线条和色彩,以及精致的材质和工艺,让生活空间充满温馨和舒适。 在意式极简风格的设计中,每一件家具和装饰品都被精心挑选和布置,以突出其独特的美感和功能性。极简风格散发出的是自然,简约,实用的气息,更注重的是创造一个舒适,宜居的家居环境,为您打造理想居住空间。整体简洁的线条配以造型简约的射灯,低调优雅又不失氛围感,打造出有层次感和质感的视觉效果,设计基调沉稳内敛,各空间功能比较注重实用性,比如提升收纳让空间利用率更大,同时选用开放式格局规划让空间更加敞亮舒适,空间舒爽通透干净有层次,营造舒适淡雅且温馨浪漫的暖意住宅。客厅区域的电视背景墙使用欧木格栅做造型基层,无主灯的设计加上白色的基调,更显空间开阔,搭配辅助光源,使整体空间在辅助光源的帮衬下氛围感满满。餐厅墙面装饰画增加了空间的观赏性,使用装饰吊灯营造温馨精致的用餐氛围感。
荣盛华府200㎡意式轻奢风格
荣盛华府200㎡意式轻奢风格
2025/11/22 下午9:32:40
本案风格设计定位为意式轻奢,是一种意大利经典与奢华元素的家居风格,同时也注重舒适和实用性。从天花板到地面,每一寸空间都充满了匠心独具的精神。无论是细腻的布艺,还是经典的大理石,都让您的家充满了高雅,奢华的气息。轻奢风格散发出的是自然,简约,实用的气息,更注重的是创造一个舒适,宜居的家居环境,为您打造理想居住空间。整体简洁的线条配以造型简约的射灯,低调优雅又不失氛围感,打造出有层次感和质感的视觉效果,设计基调沉稳内敛,各空间功能比较注重实用性,比如提升收纳让空间利用率更大,同时选用开放式格局规划让空间更加敞亮舒适,空间舒爽通透干净有层次,营造舒适淡雅且温馨浪漫的暖意住宅。客厅区域的电视背景墙使用欧木格栅做造型基层,无主灯的设计加上白色的基调,更显空间开阔,搭配辅助光源,使整体空间在辅助光源的帮衬下氛围感满满。餐厅设计一部分透明玻璃陈列柜,削弱了柜体的厚重感,将物品收纳于此,增加了空间的观赏性,使用装饰吊灯营造温馨精致的用餐氛围感。
