中原华曦府143㎡现代简约
作者: 全案设计一中心
浏览次数: 3063次
发布时间: 2026/4/13 下午4:48:42
我要做同款
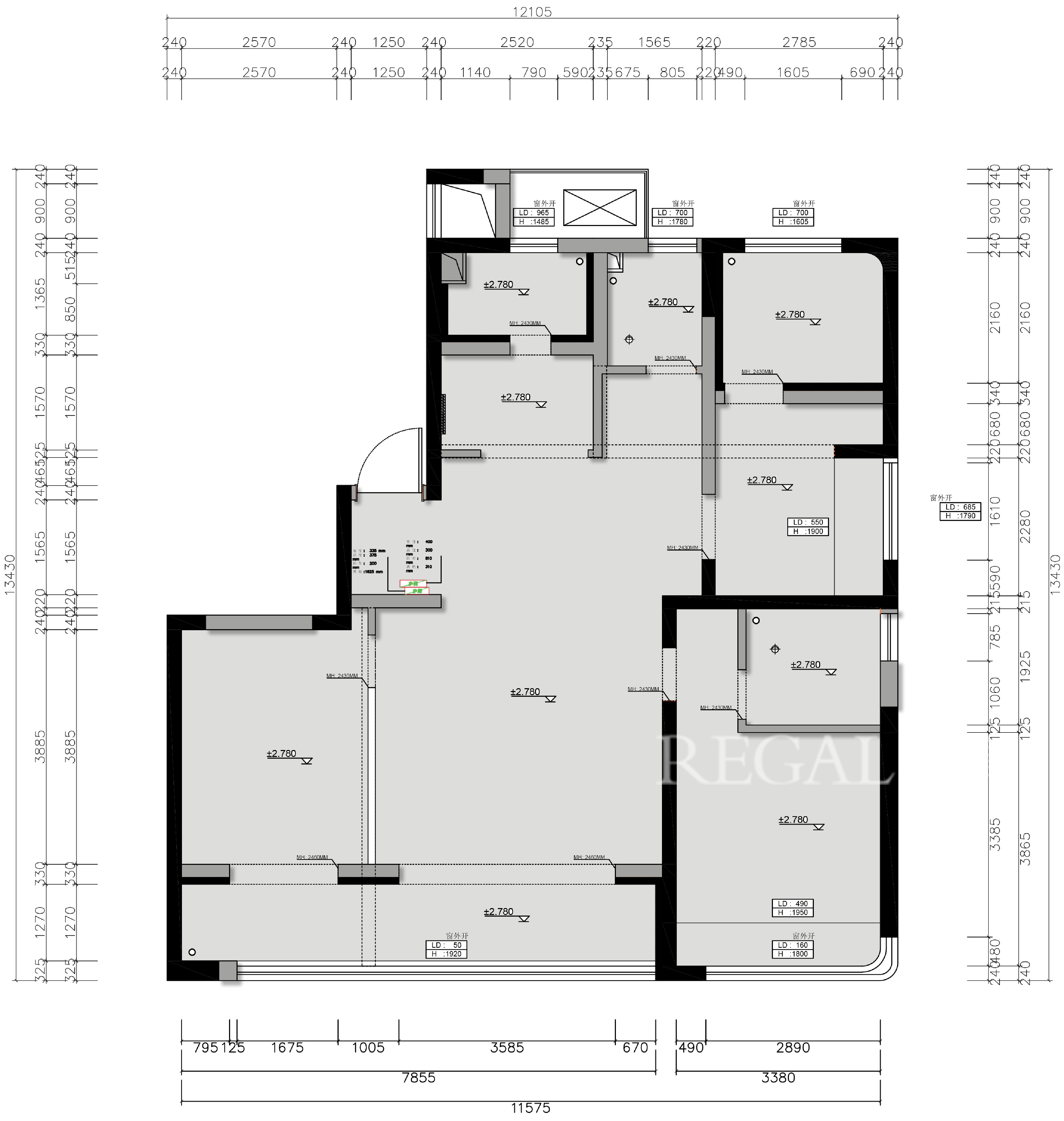
户型分析
客厅
用胡桃木色木饰面 + 熊猫白大理石做了半高隔断 + 收纳柜,既实现了入户换鞋、挂包的功能,又起到了空间分区的作用,避免客餐厅一览无余,保证了隐私性。

客厅
采用客餐厨一体化的开放布局,去掉冗余隔断,让空间显大且互动性强;用木饰面材质做隐形收纳,把功能藏在简约形态里,实现 “视觉极简,实用不极简”



餐厅
采用宝格丽大理石,大面积的黑白水墨纹理自带高级感,打破了木质空间的沉闷。

卧室
用隐藏式灯带代替复杂主灯,靠光影柔化空间,提升高级感;装饰走 “少而精” 路线:只用艺术雕塑、花艺等小体量单品点缀,不堆砌元素,让空间保持呼吸感。

相关案例查看更多
中原华曦府192㎡现代简约风
中原华曦府192㎡现代简约风
2026/5/20 上午11:25:01
本项目基于现代简约风格,融合轻奢元素,旨在打造一个兼具功能性与艺术感的居住环境。通过对平面格局的优化重组,以及对材质、光影的细腻把控,营造出通透、沉稳且富有层次的居住体验。
中原华曦府192㎡意式轻奢风
中原华曦府192㎡意式轻奢风
2026/5/20 下午2:22:07
本方案以意式轻奢为核心风格,打造 “功能与美学共生、质感与温度并存” 的客餐厅一体化空间。通过材质碰撞、光影营造与动线优化,平衡都市精英对品质生活的追求与家庭社交的情感需求,实现 “会客、休闲、用餐” 三大场景的自然过渡。
中原华曦府143㎡现代轻奢风
中原华曦府143㎡现代轻奢风
2026/5/19 下午2:47:08
隐奢于雅,自然为境:奢华感不靠堆砌,而是通过材质的原始肌理、精妙的光影控制和留白艺术来含蓄表达。
人文滋养,诗意栖居:将东方美学、艺术收藏融入空间,使其不仅是居所,更是精神容器。吊顶中也巧妙的结合“天圆地方”的哲学思考。
自然静奢,身心热爱:更强调宁静、治愈的氛围。运用微水泥、木质等营造包裹感,色彩更统一柔和,身心在此得到彻底的安放。
中原华曦府143㎡现代中古风
中原华曦府143㎡现代中古风
2026/5/19 上午7:55:27
该户型采用「自然极简 + 功能洄游」的设计逻辑,以暖调米白为基底,融入浅木色肌理,让空间在松弛感中传递温和质感。入户区用嵌入式柜 + 悬浮换鞋台 + 氛围灯带,实现收纳与仪式感的平衡;客餐厨采用 LDK 一体化布局,弧形吊顶与线性灯弱化边界,餐厅兼作社交与操作界面,玻璃移门可灵活切换开放 / 封闭模式。
越秀天悦江湾143㎡现代简约风
越秀天悦江湾143㎡现代简约风
2026/5/20 上午9:15:47
本方案以现代意式极简美学为核心,融合经典艺术基因与当代功能主义,秉持 “简约不简陋、质感不浮夸” 的设计哲学,以线条为骨、材质为魂、光影为韵,打造兼具理性秩序与温润质感的居住空间。
越秀天悦江湾143㎡现代简约风
越秀天悦江湾143㎡现代简约风
2026/5/20 下午12:09:03
该户型设计以现代轻奢风格为导向,通过简洁的线条和精致的细节处理,来展现出高雅与实用并重的居住空间。整体布局上,采用开放式设计,客厅、餐厅与厨房无缝连接,营造出宽敞通透的生活区域。客厅中,大理石与木质材料的搭配使用,既增添了自然气息,又不失时尚感。
碧桂园云湖天境210㎡现代简约风
碧桂园云湖天境210㎡现代简约风
2026/5/20 上午9:16:15
当时光的喧嚣渐渐沉淀,人们对家的向往愈发趋向内心的宁静与纯粹。本案以简白为纸,润木为墨,勾勒出一处能安放疲惫、滋养心灵的静谧港湾。
中海云著湖居500㎡现代极简风
中海云著湖居500㎡现代极简风
2026/5/20 上午9:25:08
设计旨在充分利用底层复式的空间特性,将地上层作为家庭主要生活区,将地下层打造为一个集高端会客、休闲娱乐、静谧休憩于一体的“家庭私享空间”。
