兰溪府160㎡现代简约风
作者: 全案设计一中心
浏览次数: 2613次
发布时间: 2026/4/13 下午4:04:55
我要做同款
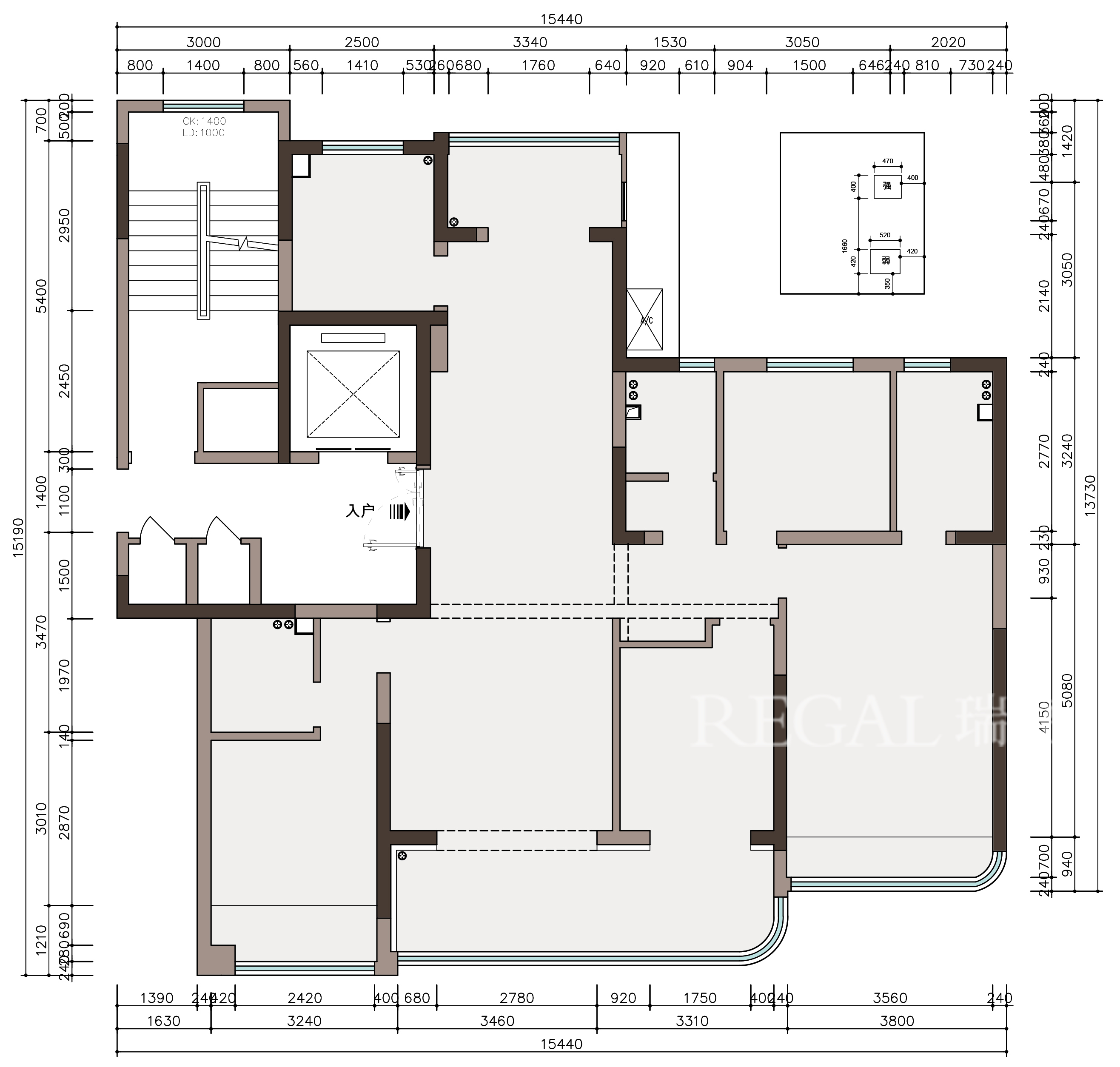
户型分析
客厅
业主要求空间开阔明亮,同时还要具有时尚感,经济实用和装饰效果也要同时兼顾。

客厅
该方案整体采用中性色调,沉稳大气又不失品味,有着令人眼前一亮的视觉感受。


餐厅
该方案整体采用中性色调,沉稳大气又不失品味,有着令人眼前一亮的视觉感受。线条简单流畅,直线和曲线的结合,有着现代风格的家居特点。


卧室


相关案例查看更多
兰溪府160㎡现代轻奢风
兰溪府160㎡现代轻奢风
2026/5/20 上午9:15:57
本案采用现代轻奢风格,以简洁却不失精致的设计手法,营造出时尚且极具品质感的居住空间。在材质运用上,选用透光石、金属、玻璃等材料。不同材质的拼贴方式进一步丰富了细节层次,在整体的统一中蕴含着独特的故事感。
兰溪府160㎡意式轻奢风
兰溪府160㎡意式轻奢风
2026/5/20 上午7:43:14
本案以胡桃木及灰色作为核心搭配,打造充满质感的意式家居空间。胡桃木的温润厚重与灰色的通透柔和 相互碰撞,搭配岩板、皮革等材质,以诠释低调奢华的永恒美学。
兰溪府134㎡现代简约风
兰溪府134㎡现代简约风
2026/5/20 上午9:18:03
本案采用暖白色作为主色调,搭配木纹做点缀,整体营造出宁静又包容的空间氛围。放弃了常规大面积的吊顶做法,主要以边吊为主,尽可能保留层高,让空间看起来更宽敞通透。
兰溪府134㎡中古风
兰溪府134㎡中古风
2026/5/19 下午9:58:54
书房隔墙改造为玻璃推拉门,让书房空间与客餐厅形成视觉连接,引入自然光线,营造通透开阔的居住体验,家人之间可以自然互动,提升整体空间的明亮感与亲密感。
中原华曦府192㎡现代简约风
中原华曦府192㎡现代简约风
2026/5/20 上午11:25:01
本项目基于现代简约风格,融合轻奢元素,旨在打造一个兼具功能性与艺术感的居住环境。通过对平面格局的优化重组,以及对材质、光影的细腻把控,营造出通透、沉稳且富有层次的居住体验。
越秀天悦江湾143㎡现代简约风
越秀天悦江湾143㎡现代简约风
2026/5/20 上午9:15:47
本方案以现代意式极简美学为核心,融合经典艺术基因与当代功能主义,秉持 “简约不简陋、质感不浮夸” 的设计哲学,以线条为骨、材质为魂、光影为韵,打造兼具理性秩序与温润质感的居住空间。
越秀天悦江湾143㎡现代简约风
越秀天悦江湾143㎡现代简约风
2026/5/20 下午12:09:03
该户型设计以现代轻奢风格为导向,通过简洁的线条和精致的细节处理,来展现出高雅与实用并重的居住空间。整体布局上,采用开放式设计,客厅、餐厅与厨房无缝连接,营造出宽敞通透的生活区域。客厅中,大理石与木质材料的搭配使用,既增添了自然气息,又不失时尚感。
碧桂园云湖天境210㎡现代简约风
碧桂园云湖天境210㎡现代简约风
2026/5/20 上午9:16:15
当时光的喧嚣渐渐沉淀,人们对家的向往愈发趋向内心的宁静与纯粹。本案以简白为纸,润木为墨,勾勒出一处能安放疲惫、滋养心灵的静谧港湾。
