中原华曦府168㎡意式轻奢风
作者: 原创设计二中心
浏览次数: 3266次
发布时间: 2026/4/18 下午5:56:08
我要做同款
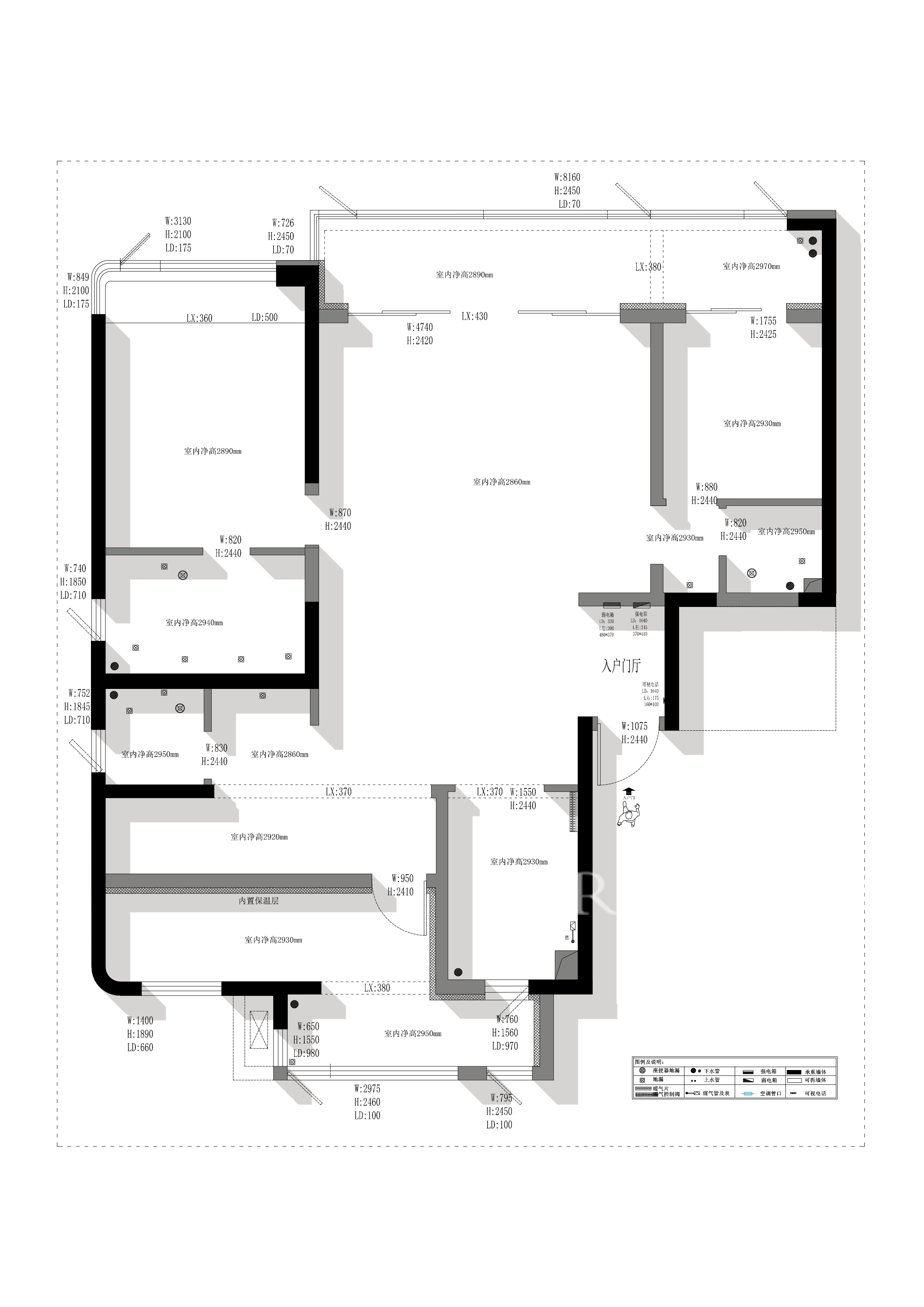
户型分析
玄关
玄关作为入户的第一印象,被设计成了一个半围合式的过渡空间。左右两侧的木饰面立柱形成了天然的 “框景”,将视线自然引向中间的背景墙与端景,也起到了分隔玄关与客餐厅的作用,让入户有了明确的仪式感,避免了 “开门直见厅” 的直白感。

客厅
整个空间以暖米色 + 浅木色为基底,搭配天然大理石、金属细节和艺术软装,没有过度堆砌浮夸元素,而是用材质本身的质感传递轻奢调性,营造出「克制的高级感」,既温暖治愈,又自带低调贵气。



餐厅
餐边柜后方的整面木饰面背景墙,采用了无拉手的隐形柜门设计,线条简洁利落,既可以隐藏储物空间,也让墙面整体感更强,和餐边柜的木色柜体完美呼应,让整个空间的色调和谐统一。

卧室
整个空间以米杏色 + 深胡桃木色为主色调,搭配柔和的无主灯光影,没有过度的装饰元素,用材质本身的质感传递高级感,营造出温暖、静谧又松弛的氛围,完美适配卧室 “疗愈休憩” 的核心功能。


相关案例查看更多
中原华曦府143㎡现代轻奢风
中原华曦府143㎡现代轻奢风
2026/4/21 下午1:14:12
隐奢于雅,自然为境:奢华感不靠堆砌,而是通过材质的原始肌理、精妙的光影控制和留白艺术来含蓄表达。
人文滋养,诗意栖居:将东方美学、艺术收藏融入空间,使其不仅是居所,更是精神容器。吊顶中也巧妙的结合“天圆地方”的哲学思考。
自然静奢,身心热爱:更强调宁静、治愈的氛围。运用微水泥、木质等营造包裹感,色彩更统一柔和,身心在此得到彻底的安放。
中原华曦府143㎡现代中古风
中原华曦府143㎡现代中古风
2026/4/21 下午3:47:07
该户型采用「自然极简 + 功能洄游」的设计逻辑,以暖调米白为基底,融入浅木色肌理,让空间在松弛感中传递温和质感。入户区用嵌入式柜 + 悬浮换鞋台 + 氛围灯带,实现收纳与仪式感的平衡;客餐厨采用 LDK 一体化布局,弧形吊顶与线性灯弱化边界,餐厅兼作社交与操作界面,玻璃移门可灵活切换开放 / 封闭模式。
华曦府143㎡现代简约风
华曦府143㎡现代简约风
2026/4/17 上午11:20:41
本案设计整体采用现代意识风格为设计思路。全房采用明装无主灯的形式设计营造柔和高级氛围。
中海云著湖居195㎡意式轻奢风
中海云著湖居195㎡意式轻奢风
2026/4/20 上午12:33:09
本案式一套精装修项目,结合现有硬装,设计师采用意式轻奢风格从以下3个方便来做布局
空间布局:客餐一体化开放式设计,消弭区域隔断,让空间通透感、开阔感翻倍。
材质质感:暖棕木饰面 + 金属(茶几 / 吊灯 / 柜框)+ 光亮石材地面 + 局部大理石纹理,多重材质叠加出高级轻奢感。
采光与视野:超大落地窗 + 柔纱帘,既引入充足自然采光,又柔化光线;同时能直接俯瞰城市景观,提升空间氛围感。
兰溪府160㎡现代轻奢风
兰溪府160㎡现代轻奢风
2026/4/19 下午2:52:21
本案采用现代轻奢风格,以简洁却不失精致的设计手法,营造出时尚且极具品质感的居住空间。在材质运用上,选用透光石、金属、玻璃等材料。不同材质的拼贴方式进一步丰富了细节层次,在整体的统一中蕴含着独特的故事感。
兰溪书院131㎡现代轻奢风
兰溪书院131㎡现代轻奢风
2026/4/20 下午8:45:40
该户型优化空间,将三室改为两室。遵循现代轻奢风格,重新组合布局,实现“大尺度舒适、精致美学与弹性功能”融合的居住体验。
兰溪书院131㎡现代轻奢风
兰溪书院131㎡现代轻奢风
2026/4/18 下午2:54:53
该户型优化空间,将三室改为两室。遵循现代轻奢风格,重新组合布局,实现“大尺度舒适、精致美学与弹性功能”融合的居住体验。拆除部分非承重隔墙,拓宽客餐厅空间,让光线和视线更通透流畅,营造互动性空间。
兰溪书院131㎡现代轻奢风
兰溪书院131㎡现代轻奢风
2026/4/20 下午11:02:41
本案保留三室格局,以“极简线条 + 高级材质 + 低调奢华”为设计理念,延续意式精致并融入现代舒适。墙面与柜体多采用“无把手”设计,彰显意式简约美学。整体以低饱和度的暖棕、浅灰为主色调,搭配深咖与哑光黑点缀,营造沉稳高级氛围,通过材质碰撞展现意式精致。秉持“简约不简单,奢华不张扬”理念,摒弃传统轻奢过度装饰,借鉴意式“功能与美学共生”逻辑,保证实用性,借助材质、线条与光影搭配传递高级内敛品味,既满足日常起居需求,又营造兼具社交与私密氛围的家居场景。
