兰溪书院131㎡现代轻奢风
作者: 原创设计三中心
浏览次数: 2666次
发布时间: 2026/1/4 下午2:18:34
我要做同款
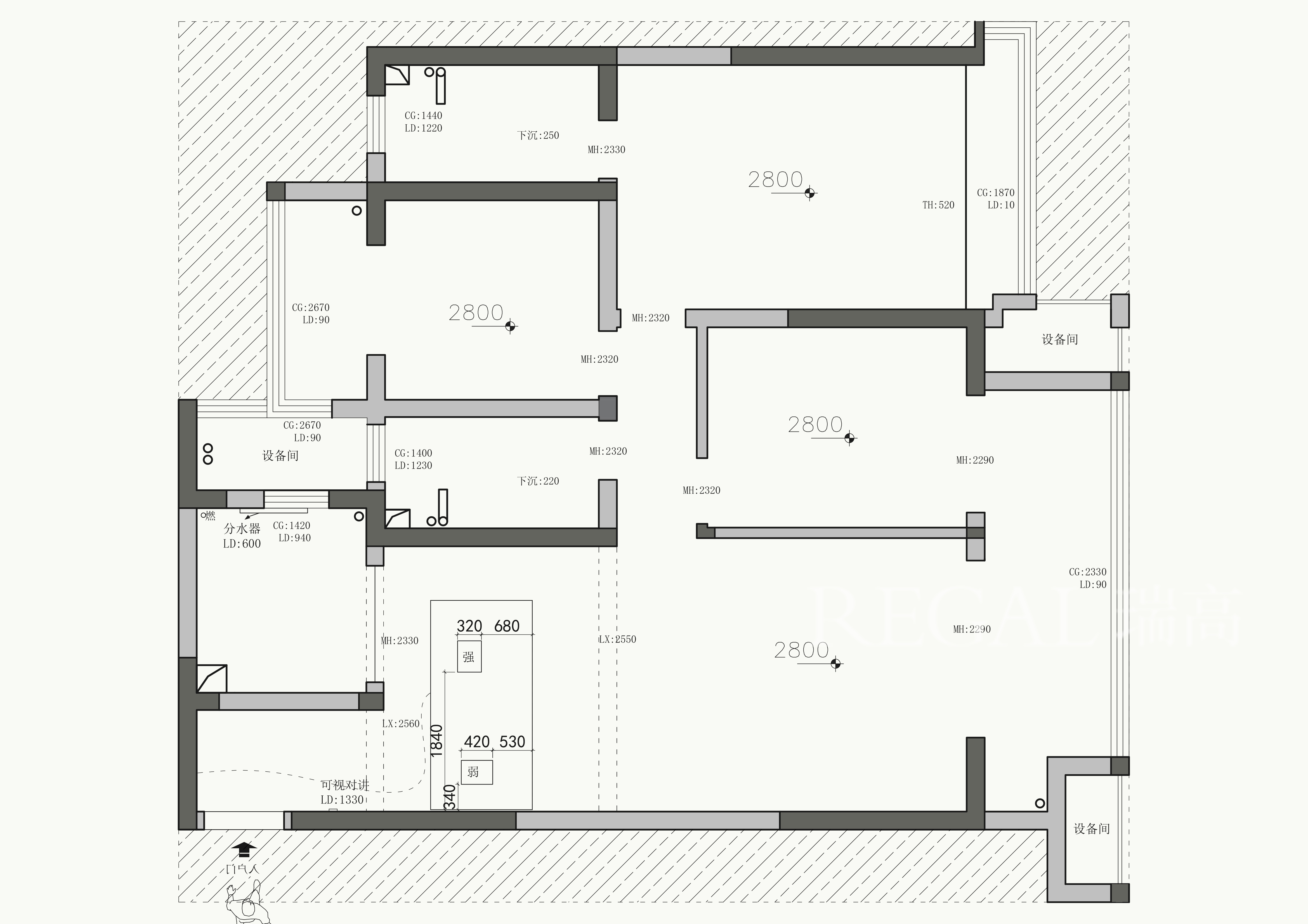
户型分析
门厅
该户型保留三室格局,以“极简线条 + 高级材质 + 低调奢华”为设计理念,延续意式精致并融入现代舒适。

客厅
墙面与柜体多采用“无把手”设计,彰显意式简约美学。整体以低饱和度的暖棕、浅灰为主色调,搭配深咖与哑光黑点缀,营造沉稳高级氛围,通过材质碰撞展现意式精致。


主卧
秉持“简约不简单,奢华不张扬”理念,摒弃传统轻奢过度装饰,借鉴意式“功能与美学共生”逻辑,保证实用性,借助材质、线条与光影搭配传递高级内敛品味,既满足日常起居需求,又营造兼具社交与私密氛围的家居场景。



相关案例查看更多
兰溪书院155㎡法式奶油风
兰溪书院155㎡法式奶油风
2026/5/19 下午9:40:41
本案软装以法式奶油风为核心,融合浪漫优雅与温润治愈,打造松弛慵懒的人居空间。整体以低饱和奶杏色为基底,删繁就简,以柔美的线条、温润的材质与克制的用色为语言,营造出兼具浪漫感与高级感的居住氛围。空间以棉麻布艺、温润木作与琉璃灯具为核心,搭配艺术挂画、绿植与手工陶艺点缀,弱化冗余装饰,凸显材质本真质感。通过柔和的氛围光影、舒适的家具尺度与统一的风格调性,构建出通透、静谧、松弛的整体场域,传递出慢生活的哲学理念,打造出兼具实用性与艺术感的当代理想家居。
兰溪书院131㎡现代轻奢风
兰溪书院131㎡现代轻奢风
2026/5/20 上午9:17:30
该户型优化空间,将三室改为两室。遵循现代轻奢风格,重新组合布局,实现“大尺度舒适、精致美学与弹性功能”融合的居住体验。拆除部分非承重隔墙,拓宽客餐厅空间,让光线和视线更通透流畅,营造互动性空间。
兰溪书院131㎡现代轻奢风
兰溪书院131㎡现代轻奢风
2026/5/17 下午4:11:47
本案保留三室格局,以“极简线条 + 高级材质 + 低调奢华”为设计理念,延续意式精致并融入现代舒适。墙面与柜体多采用“无把手”设计,彰显意式简约美学。整体以低饱和度的暖棕、浅灰为主色调,搭配深咖与哑光黑点缀,营造沉稳高级氛围,通过材质碰撞展现意式精致。秉持“简约不简单,奢华不张扬”理念,摒弃传统轻奢过度装饰,借鉴意式“功能与美学共生”逻辑,保证实用性,借助材质、线条与光影搭配传递高级内敛品味,既满足日常起居需求,又营造兼具社交与私密氛围的家居场景。
中海云著湖居195㎡意式轻奢风
中海云著湖居195㎡意式轻奢风
2026/5/20 下午12:39:06
本案式一套精装修项目,结合现有硬装,设计师采用意式轻奢风格从以下3个方便来做布局
空间布局:客餐一体化开放式设计,消弭区域隔断,让空间通透感、开阔感翻倍。
材质质感:暖棕木饰面 + 金属(茶几 / 吊灯 / 柜框)+ 光亮石材地面 + 局部大理石纹理,多重材质叠加出高级轻奢感。
采光与视野:超大落地窗 + 柔纱帘,既引入充足自然采光,又柔化光线;同时能直接俯瞰城市景观,提升空间氛围感。
兰溪府160㎡现代轻奢风
兰溪府160㎡现代轻奢风
2026/5/20 上午9:15:57
本案采用现代轻奢风格,以简洁却不失精致的设计手法,营造出时尚且极具品质感的居住空间。在材质运用上,选用透光石、金属、玻璃等材料。不同材质的拼贴方式进一步丰富了细节层次,在整体的统一中蕴含着独特的故事感。
中原华曦府143㎡现代轻奢风
中原华曦府143㎡现代轻奢风
2026/5/19 下午2:47:08
隐奢于雅,自然为境:奢华感不靠堆砌,而是通过材质的原始肌理、精妙的光影控制和留白艺术来含蓄表达。
人文滋养,诗意栖居:将东方美学、艺术收藏融入空间,使其不仅是居所,更是精神容器。吊顶中也巧妙的结合“天圆地方”的哲学思考。
自然静奢,身心热爱:更强调宁静、治愈的氛围。运用微水泥、木质等营造包裹感,色彩更统一柔和,身心在此得到彻底的安放。
中原华曦府192㎡现代轻奢风
中原华曦府192㎡现代轻奢风
2026/5/20 下午1:55:38
本项目为一套大平层住宅,基于原始户型结构,以现代轻奢为核心风格,打造兼具通透感、实用性与艺术感的居住空间。原始户型采光面充足,右侧弧形观景窗为空间亮点,设计中最大化利用景观资源,同时优化动线与功能分区,满足现代家庭的生活需求。
中原华曦府168㎡意式轻奢风
中原华曦府168㎡意式轻奢风
2026/5/17 上午1:48:10
入户过渡区:设置了独立的玄关收纳区,避免了开门见厅的尴尬,同时也方便收纳鞋子、衣物和随身物品,提升了入户的仪式感和实用性。
卫生间干湿分区:主卫和次卫都做了干湿分离设计,将洗漱、如厕和淋浴区分开,减少了潮湿和细菌滋生,同时也提升了使用效率,多人使用时互不干扰。
采光与通风优化:通过拆除非承重墙、打通公区,让室内的采光面最大化,空气对流也更顺畅,改善了传统户型中暗厅、暗厨的问题。
