招商林屿境143㎡新中式
作者: 原创设计一中心
浏览次数: 2256次
发布时间: 2026/4/25 下午4:41:30
我要做同款
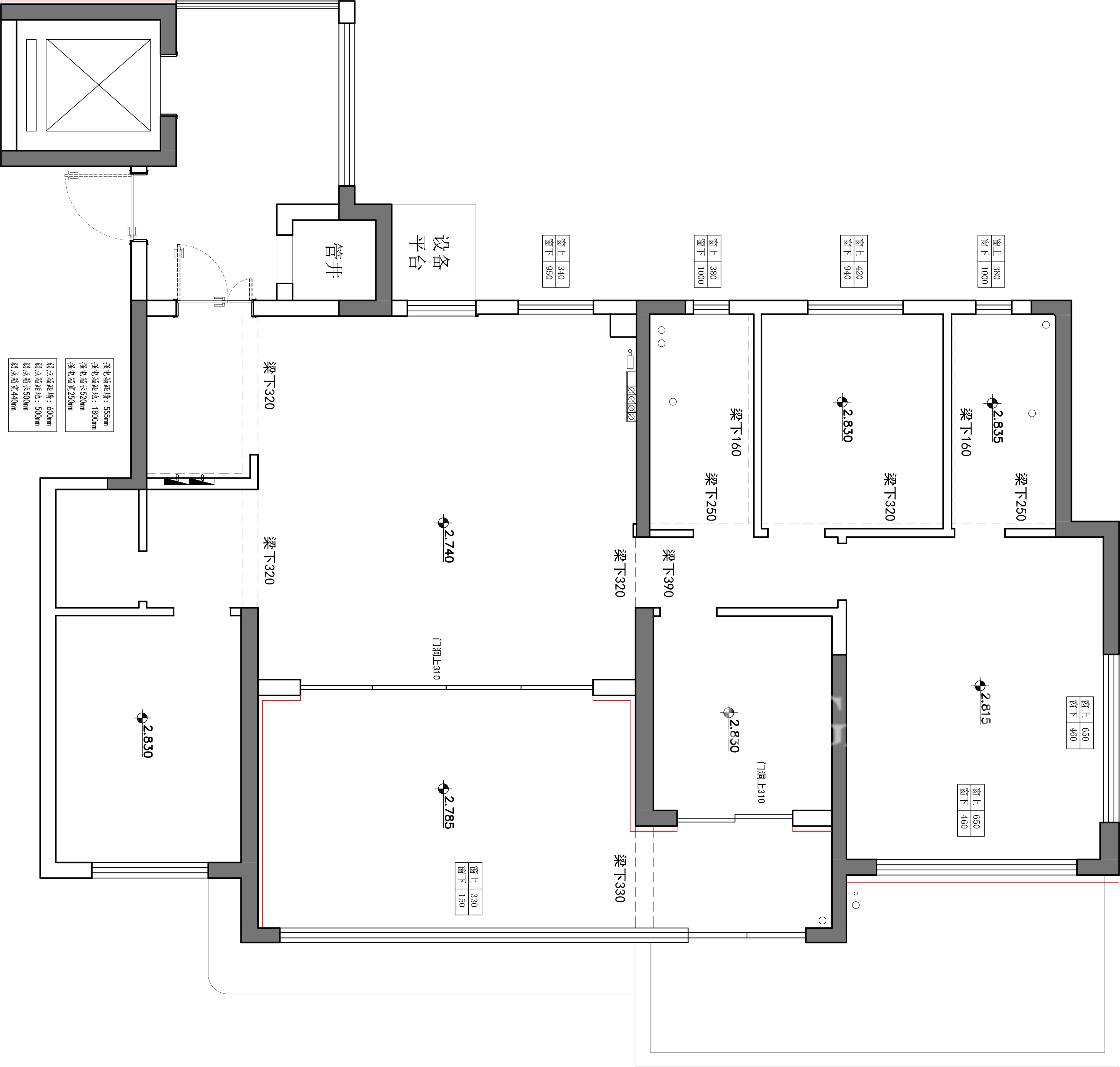
户型分析
门厅
玄关屏风虚实相生,笔墨挂画衬以留白墙面,尽显中式空间的庄重与内敛。

客厅
本空间以中式古典为核心基调,萃取传统美学精髓,融东方雅韵与当代实用。整体布局动线舒朗有序,博古架陈列古瓷雅玩.



餐厅
整体空间处理上,摒弃繁复堆砌,以简驭繁,既保留中式空间的温润禅意,又适配现代生活需求,让居者在古韵氛围中,享诗意栖居之境。

卧室
整体以胡桃木色 + 米杏色 + 浅咖色为主色调,搭配温润的木纹肌理与柔和的暖光,营造出沉稳、静谧又不失温度的氛围。没有过度的雕花与繁复装饰,是更偏向 “静奢” 的现代新中式表达,克制又高级。





相关案例查看更多
华曦府192㎡简约中式风
华曦府192㎡简约中式风
2026/4/24 下午5:24:27
本案例设计以“通透舒适、以人为本”为核心,兼顾空间美学与实用功能,打造出兼具质感与温度的居住空间。空间布局上,采用通透流动的设计思路,功能分区清晰合理。
南岸花城580m²新东方
南岸花城580m²新东方
2026/4/25 下午2:41:55
本案是一套唯美新东方设计,建筑位于河流旁边,将室内原有的结构进行重新梳理,根据客户的需求打造了独属于个人的功能空间。整个室内的设计讲究对称,充分的把户外的美景与室内进行了延伸结合。
青风院子432㎡现代新中
青风院子432㎡现代新中
2026/4/24 下午3:32:46
白云为籓篱,翠山为屏,
与自然为邻,与天地合一,回到诗意栖居。
在东方文化的深邃脉络里,哲学思想如繁星璀璨,
深刻影响着人们对生活空间的理解与塑造。
生在古朴素雅中以层叠递进的叙事线索将空间、光影、动线、人文有机融合,打造自然舒适的家庭氛围。
富田九鼎世家230㎡现代中式风格
富田九鼎世家230㎡现代中式风格
2026/4/24 下午8:23:29
本案四口之家,儿子女儿一个高中,一个中学,业主两口看起来比较年轻
40岁左右,男主私企老板,女主幼儿园老师,装修风格定位现代中式
门厅改造后圆润大气,客餐厅更通透
天圆地方,胡桃木色和岩板结合厚重质感,新中式的玄关柜搭配绿植小景
中式韵味呈现
美景美之心 220㎡ 新中式风格
美景美之心 220㎡ 新中式风格
2026/4/23 上午8:47:28
新中式室内设计,是一种将传统中式文化与现代审美理念相结合的设计风格。它旨在传承中华文化的精髓,同时融入现代生活的实际需求,打造出既具文化底蕴又不失现代感的生活空间。
思念果岭 300㎡ 新中式风格
思念果岭 300㎡ 新中式风格
2026/4/22 下午2:44:52
本案户型为复式,装修风格定位为新中式风格。根据每个客户的需求不一样,根据客户的需求采用了新中式的手法与色彩搭配,让客户回到家之后一个放松的状态。各功能分区明确,整体干净素雅,完客户打造一个非常温馨舒适的家。新中式风格是中式元素与现代材质的巧妙兼柔的布局风格,它同时明清家具、窗棂、布艺床品相互辉映,经典地再现了移步变景的精妙小品。 新中式风格还继承明清时期家居理念的精华,将其中的经典元素提炼并加以丰富,同时改变原有空间布局中等级、尊卑等封建思想,给传统家居文化注入了新的气息。
兰溪上苑 170㎡下叠 新中式风格
兰溪上苑 170㎡下叠 新中式风格
2026/4/25 上午10:13:07
本案为兰溪上苑170平的下叠户型,通过运用黑胡桃木、大理石等材质,以及蓝色的点缀和丝绸刺绣元素,打造了一个兼具沉稳大气与时尚雅致的家居空间。各个功能区域的设计都充分考虑了实用性与美学感受,展现了新中式风格的独特魅力,为居住者提供了一个温馨、舒适且充满东方美学的生活环境。
中海九号公馆 183m² 新中式风格
中海九号公馆 183m² 新中式风格
2026/4/24 下午3:16:05
空间的设计给人一种宁静、优雅的感觉。设计师通过不同的设计表现将白色与木色在空间中置换营造出层次感,简而不俗。
