兰溪书院155㎡中古风
作者: 原创设计三中心
浏览次数: 2939次
发布时间: 2026/1/11 下午1:49:57
我要做同款
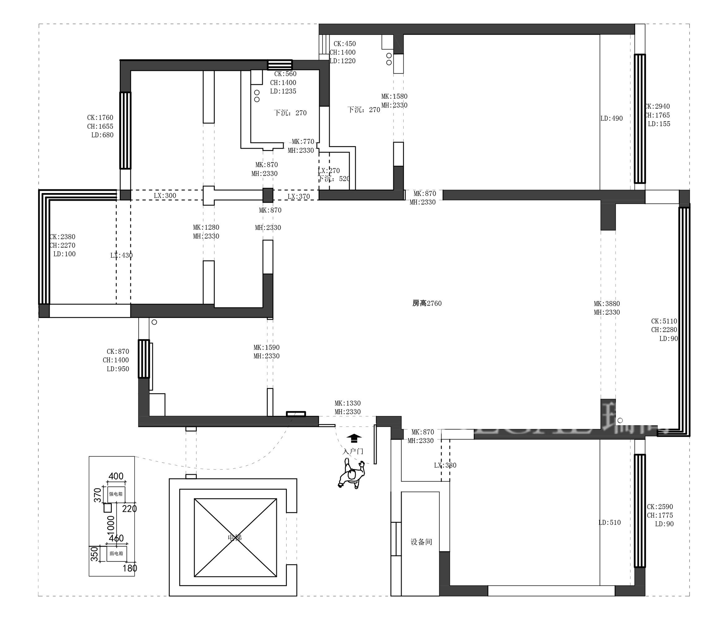
户型分析
客厅
本方案为定义为法式中古风,通过线条的对称的仪式感,家具和造型线条的干净流畅,强调功能性与美感的平衡,色彩以中性主色调营造宁静基底,天然材料的原始质感与新旧对比,最后通过灯光设计、装饰挂画来丰富细节,烘托氛围。


餐厅
黑白圆桌配红色桌腿,亮眼又复古;椅子走混搭风 —— 红色框架 + 绿色坐垫的椅子撞色吸睛,木色椅则添了温润感,桌上的绿植和果盘让空间更有生活气。

卧室
这是一间轻法式复古混搭风的温馨小家,暖调氛围里藏满了精致细节,既舒适又有个性~ 地面是暖棕色人字拼木地板,自带温柔滤镜;天花板的石膏线 + 嵌入式灯带,搭配复古黑色吊灯,轻法式的优雅感一下就出来了。


相关案例查看更多
兰溪书院155㎡法式奶油风
兰溪书院155㎡法式奶油风
2026/5/19 下午9:40:41
本案软装以法式奶油风为核心,融合浪漫优雅与温润治愈,打造松弛慵懒的人居空间。整体以低饱和奶杏色为基底,删繁就简,以柔美的线条、温润的材质与克制的用色为语言,营造出兼具浪漫感与高级感的居住氛围。空间以棉麻布艺、温润木作与琉璃灯具为核心,搭配艺术挂画、绿植与手工陶艺点缀,弱化冗余装饰,凸显材质本真质感。通过柔和的氛围光影、舒适的家具尺度与统一的风格调性,构建出通透、静谧、松弛的整体场域,传递出慢生活的哲学理念,打造出兼具实用性与艺术感的当代理想家居。
兰溪书院131㎡现代轻奢风
兰溪书院131㎡现代轻奢风
2026/5/19 上午9:36:16
该户型优化空间,将三室改为两室。遵循现代轻奢风格,重新组合布局,实现“大尺度舒适、精致美学与弹性功能”融合的居住体验。
兰溪书院131㎡现代轻奢风
兰溪书院131㎡现代轻奢风
2026/5/20 上午9:17:30
该户型优化空间,将三室改为两室。遵循现代轻奢风格,重新组合布局,实现“大尺度舒适、精致美学与弹性功能”融合的居住体验。拆除部分非承重隔墙,拓宽客餐厅空间,让光线和视线更通透流畅,营造互动性空间。
兰溪书院131㎡现代轻奢风
兰溪书院131㎡现代轻奢风
2026/5/17 下午4:11:47
本案保留三室格局,以“极简线条 + 高级材质 + 低调奢华”为设计理念,延续意式精致并融入现代舒适。墙面与柜体多采用“无把手”设计,彰显意式简约美学。整体以低饱和度的暖棕、浅灰为主色调,搭配深咖与哑光黑点缀,营造沉稳高级氛围,通过材质碰撞展现意式精致。秉持“简约不简单,奢华不张扬”理念,摒弃传统轻奢过度装饰,借鉴意式“功能与美学共生”逻辑,保证实用性,借助材质、线条与光影搭配传递高级内敛品味,既满足日常起居需求,又营造兼具社交与私密氛围的家居场景。
金地滨河风华159㎡ 中古风
金地滨河风华159㎡ 中古风
2026/5/20 上午9:16:48
这是一套现代暖调风格的中古风案例,业主一家4口,喜欢简单舒适的家,女业主喜欢中古元素,不想要太复杂的,既简单又舒服的生活空间,结合户型结构,本案就采用了客餐厨一体化家居空间,整体设计既通透又有质感:风格与色调表现上主打温暖的「现代轻复古」,以胡桃木色木纹、柔和米色为基底,搭配深灰厨房柜体做层次,氛围温馨又高级。采用拱形元素柔化空间线条,带点优雅复古感;开放式布局让客餐厨连通,显大又通透;灯光层次丰富,既满足照明又烘托氛围,嵌入式收纳柜,兼顾美观与实用。
中原华曦府143㎡现代中古风
中原华曦府143㎡现代中古风
2026/5/19 上午7:55:27
该户型采用「自然极简 + 功能洄游」的设计逻辑,以暖调米白为基底,融入浅木色肌理,让空间在松弛感中传递温和质感。入户区用嵌入式柜 + 悬浮换鞋台 + 氛围灯带,实现收纳与仪式感的平衡;客餐厨采用 LDK 一体化布局,弧形吊顶与线性灯弱化边界,餐厅兼作社交与操作界面,玻璃移门可灵活切换开放 / 封闭模式。
兰溪府134㎡中古风
兰溪府134㎡中古风
2026/5/19 下午9:58:54
书房隔墙改造为玻璃推拉门,让书房空间与客餐厅形成视觉连接,引入自然光线,营造通透开阔的居住体验,家人之间可以自然互动,提升整体空间的明亮感与亲密感。
中原华曦府143㎡中古风
中原华曦府143㎡中古风
2026/5/16 下午6:01:11
核心理念:以“自然、温润、通透”为关键词,融合现代简约的线条感与中古风的材质温度,打造兼具实用性与艺术感的居住空间。
